- Schaltermaterial
-
Verteilungsbau
- LS-Schalter 1pol.
- LS-Schalter 3pol.
- FI-Schutzschalter
- FI/LS-Schalter
- LS-Schalter Sondertyp
- Hauptschalter
- SLS-Schalter
- Unterputzverteiler
- Aufputzverteiler
- Hohlwandverteiler
- Feuchtraumverteiler - AP
- Feldverteiler
- Zählerschrank
- Baustromverteiler
- Leergehäuse
- Abdeckstreifen
- Klemmsteine
- Neozed
- Diazed
- Absicherungspaket
- Brandschutzschalter
- Schütze u. Relais
- Lasttrennschalter
- Hilfsschalter
- Stromstoßschalter
- Überspannungsschutz
- Dimmer
- Eaton
- Industrie
- Dämmerungsschalter
- Finder
- Steckdose
- Kabelbrücken
- Klingeltrafo
- Leuchtmelder
- Motorschutz
- Netzteil
- Netzüberwachung
- NH-Sicherungen
- NH-Verteiler
- Phasenschienen
- Profil-/ Hutschiene
- Reihenklemmen
- Stromversorgungen
- Stromzähler
- Umschalter
- Zeitschaltuhr
- Sonstige
- Installationsmaterial
- KNX
- Photovoltaik
- Sonderposten
- NEU
Wago 2003-7641 Etagenklemme NT/L/PE 2,5mmInstallations-Etagenklemme mit N-Trennsc hlitten NTLPE Mitten- Seitliche Beschrif tung für TS 35 Frontverdrahtung CAGE CLA MPS-Anschluss grau 2003-7641
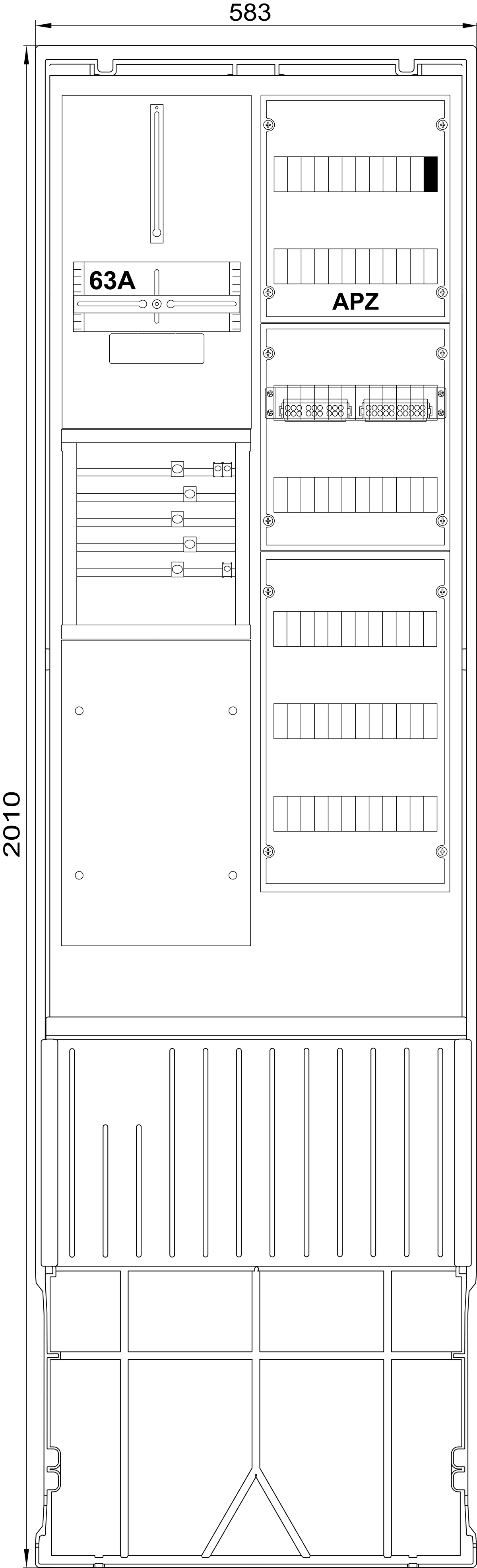
Multimediafeld,univers Z, Höhe 1350mm,1-feldig,mit APZ unten
Die Gerätegeneration InLine II ZLBM / ZHBM bietet Ihnen bestmögliche Stabilität und höchste Sicherheit im Stromverteilernetz. Sie schalten Nennströme von 160 A bis 630 A und durch den Einsatz von Doppelgriffen sogar bis 1250 A. Dabei sorgen Sie für höchsten Personenschutz bei Betrieb und Wartung Ihrer Schaltanlagen. ABB bietet Ihnen die Baureihe in 1- und 3-poligen Varianten zur Verfügung, die entsprechend nach EN / IEC 60947-3 geprüft wurden. Die Installation ist dank horizontaler und vertikaler Montage platzsparender und flexibler als je zuvor. Ebenso gewährleisten wir einen einfachen und sicheren Einbau der Stromwandler sowie Austausch der NH-Sicherungseinsätze. Die Baureihe ist für Phasenschienen mit einem Abstand von 185 mm geeignet.
Zählerfeld 2-feldrig, 2-Zählerplätze eHZ, 2-Reserveplätze, Höhe 1050 mm, Breite 500 mm, Sammelschienensystem 5-polig
Hybrid, volta, Hohlwand, 24PLE, 2 Montageplatten, mit Steckdose + Kunststofftür. Installationskleinverteiler für Hohlwandeinbau aus Kunststoff, geprüft nach DIN VDE 60670-24 und DIN 43 871. Bemessungsspannung 400V/50 Hz. Schutzart IP30, Bestehend aus Kunststoff-Mauerkasten mit serienmäßigem Leitungsabfang und ausbrechbaren Leitungseinführungsschieber mit Schnappbefestigung sowie integrierter Wasserwaage. Hohlwandbefestigung mit Schnellfixierungshebel, seitlich oder oben / unten montierbar. Blendrahmen aus Stahlblech, pulverbeschichtet und eingebrannt. 15 mm Putzausgleich möglich. Lüftungstür mit nicht transparenter Kunststoffplatte zur besseren Ausbreitung des WLAN-Signals gegenüber einer Blechtür. Lüftungsschlitze unten und oben in der Kunststoffplatte, um die Verlustwärme besser abführen zu können. Schutzart IP30, Weiss RAL9010, frontbündig mit innenliegenden, handbedienbaren Scharnieren. Türverschluss mit frontbündiger Griffmulde und selbsttätig zurückklappendem Griff. Türanschlag rechts oder links ohne Blendrahmendemontage. 2-reihiger Geräteträger aus verzinktem Stahlblech. 2-reihige Geräteabdeckung aus Kunststoff für 24 (28) Module mit 46 mm Geräteschlitz, Schnellverschlussbefestigung mit 90-Drehung an dem Leitungseinführungsschieber und an der Abschottung, an beiden Seiten serienmäßig plombierbar. Fingersichere PE/N-Klemme mit Stecktechnik in montagefreundlicher Schnapptechnik. Zur sicheren Trennung zwischen Multimediateil und Stromkreisverteilung ist eine Abschottung montiert, die gleichzeitig auch die Aufnahme für bis zu zwei Steckdosen ermöglicht. Großzügiger Montageraum mit vormontierter/n Montageplatte/n aus verzinktem Stahlblech mit 3,2mm regelmäßiger Lochung nach DIN 24041. Gerätehalter für die schraublose Befestigung von Geräten zur direkten Montage auf dem Lochblech durch einhängen oder verschrauben liegen bei. Kabelführungsklammern können in den dafür vorgesehenen Schnellbefestigungen links und rechts eingebaut werden.Breite in Teilungseinheiten: 12Mit Montageplatte: jaBreite: 348Höhe: 880,5DIN-Schiene: jaTiefe: 94,5Montageart: HohlwandArt der Schließung: sonstigeEinbautiefe: 90Anzahl der Reihen: 2Art der Abdeckung: TürInnentiefe: 91,5Farbe: weißAusführung Deckel: geschlossenTransparenter Deckel/Tür: neinMit Schloss: neinEMV-Ausführung: keine AngabeRAL-Nummer: 9010Werkstoff des Gehäuses: sonstige
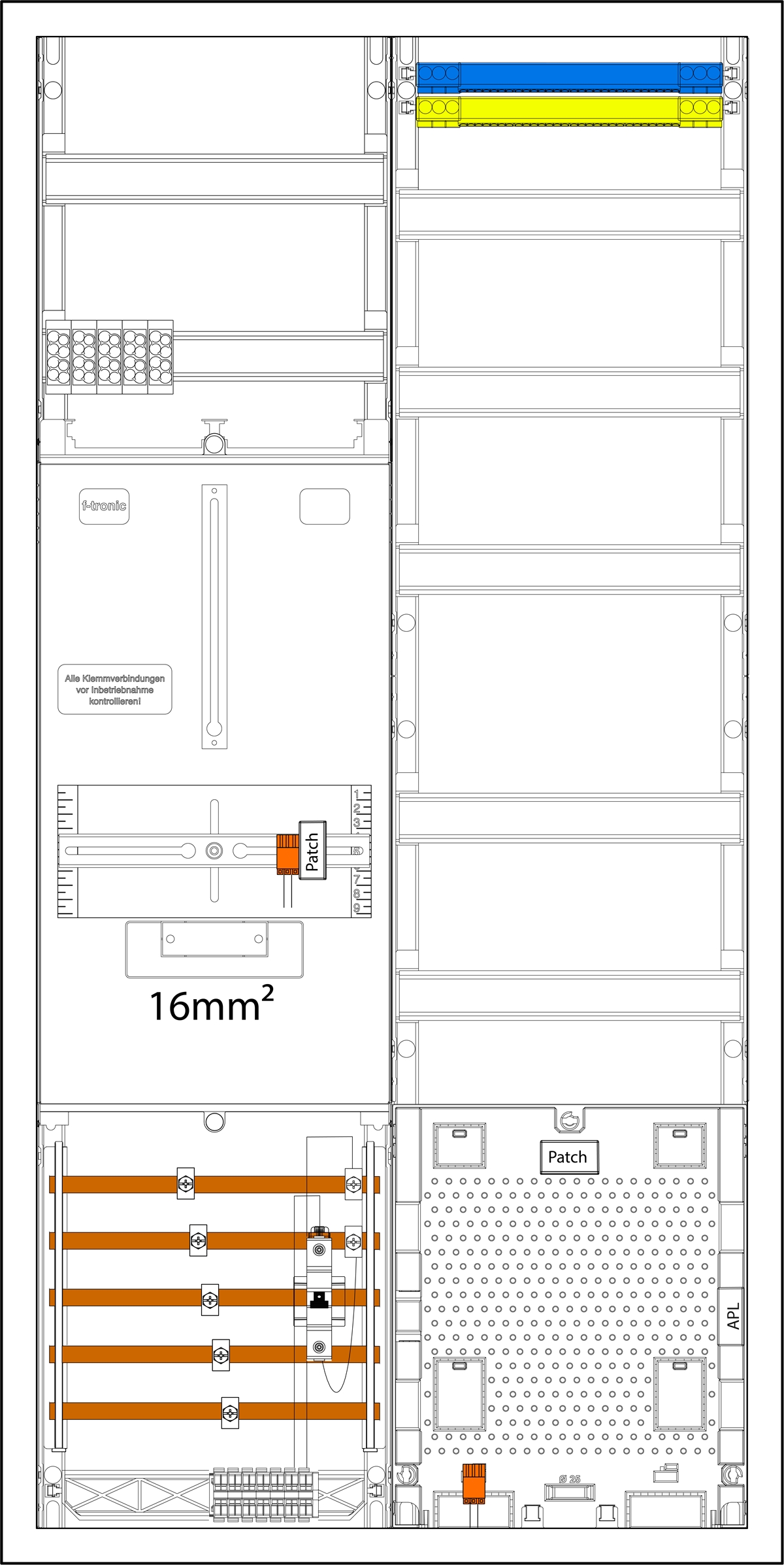
Sammelschienenklemmen (SSK16)SammelschienenisolierungAbdeckstreifen (ADS12W)1x N-N-Steckklemme (ZSSKN17N)1x PE-Steckklemme (ZSSKPE34)1 x Patchkabel (PL100)2 x Patch-Patch-Verbinder (PPV5)SLS Schalter
Weidmüller ZPE 2.5 SchutzleiterklemmeErdungsklemme 5 qmm ZPE .5 Bemess ungsdaten PE Bemessungsspannung zur Nac hbarklemme: 800 Bemessungsquerschnitt : 5 mm Bemessungsstossspannung zur Nachbarklemme: kV Klemmbare Leiter B emessungsanschluss Klemmbereich minimum : 005 mm Klemmbereich maximum: mm Anschlusstyp: Zugfederanschluss . Anschlussart: geklemmt Anschlussrich tung: oben Anzahl Anschlüsse: Abi solierlänge: 10 mm Klingenmass: 06 3 5 mm Masse Breite: 51 mm Höhe n iedrigstbauend: 395 mm Länge: 63 mm weitere technische Daten Anschlussar t: geklemmt Anschlussrichtung: oben Anzahl der Etagen: Anzahl der Klem mstellen je Etage: Anzahl gleicher K lemmen: Ausführung: Schutzleiter-Rei henklemme Einsatztemperaturbereich: 5 0 C 10 C ZPE .54008190076733
NEOZED-Sicherungssockel AC 400V/DC 250V, Formstoff, berührungsgeschützt (BGV A2), mit Abdeckung, Befestigung auf DIN-Schiene, Schutzart IP 20 mit angeschlossenen Leitern NEOZED, Sicherungssockel, D02, 3-polig, 63A, Un AC: 400V, Un DC: 250V. NEOZED-Sicherungssockel 5SG1, 5SG5 aus Duroplast/ Formstoff. Das NEOZED-Sicherungssystem von Siemens als wichtiger Bestandteil der SENTRON Schutzkomponenten für die Elektroinstallation bietet effektiven Personen-, Geräte- und Anlagenschutz durch sicheres Abschalten im Überlast- und Kurzschlussfall. Es wird vorwiegend in der Verteilertechnik und in industriellen Schaltanlagen eingesetzt. Das System ist laienbedienbar und auch für die Hausinstallation zugelassen. Die Siemens NEOZED-Sicherungssockel 5SG1, 5SG5 zeichnen sich vor allem aus durch: 1. Personensicherheit durch berührungsgeschützte Klemmen am Zu- und Abgang. 2. Doppelte Klemmkammern ermöglichen den Anschluss von zwei Leitern unterschiedlichen Querschnitts. 3. Deutlich kompaktere Bauweise im Vergleich zu DIAZED und dadurch Platzersparnis im Verteiler. 4. NEOZED-Sicherungssockel aus Formstoff. 5. Sichtbarer, eindeutiger und kontrollierbarer Anschluss der Leiter. Das erleichtert die
Die Zählerfelder mit Dreipunkt-Befestigung der Baureihe FD sind für den Einbau in ComfortLine Schränke vorgesehen. Die Felder sind unbestückt und nicht verdrahtet. Geltende Normen: DIN VDE 0603-1, DIN 43870-1, DIN 43870-2.
Siemens 5SY6106-6 Sicherungsautomat 1-polig B6ALeitungsschutzschalter 230400V 6kA1-po ligB6AT=70mm 5SY6106-6
Zähleranschlusssäule 2-feldrig. Höhe2010mm. Breite 500mm. 3.HZ, ohne Haube.
Sammelschienenklemmen (SSK16)SammelschienenisolierungAbdeckstreifen (ADS12W)
ABB Phasenschienen ermöglichen die sichere und wirtschaftliche Querverdrahtung von Sicherungsautomaten, Fehlerstrom-Schutzeinrichtungen und weiteren modularen Installationsgeräten. Für eine korrekte Phasenschienenauswahl muss Folgendes beachtet werden: Klemmentyp (Doppelklemme oder Käfigklemme), Polzahl der Geräte (1, 2, 3, 4, 1+N oder 3+N), Gerätetyp (Sicherungsautomaten, Fehlerstrom-Schutzeinrichtungen oder modulare Installationsgeräte), Kombinationen der verschiedenen Gerätetypen, Verwendung von Sicherungsautomaten mit rechts und unten angebauten Hilfsschaltern, Phasenschienen-Anschlussquerschnitt (Strombelastbarkeit), Anzahl der Module (Auswahl aus Standard-Phasenschienen oder kürzbaren Phasenschienen)Abbildung ähnlich
Produktinformationen N-Steckklemme, 6x25mm² schraubbar und 28x4mm² steckbarnur geeignet für starre Leitungen
Abb S201-C4 SICHERUNGS AUTOMAT 1P,C4 AS201-C4 Sicherungsautomat C-Char.,6kA,4A ,1P S201-C4
Leitungsschutzschalter Acti 9 iC60H, 10kA (IEC/EN 60898-1), 15kA (IEC/EN 60947-2). 1-polig, Nennstrom 10A, B-Charakteristik, Betriebsspannung (Ue) 380-415V AC, Isolationsspannung (Ui) 500V AC. Doppel-Anschlussklemme für Kabel und Stiftkammschiene an der Geräteober- und unterseite. Sprungschaltung für verschleißarmes Schalten der Kontakte. Mitfahrende Isolationsabdeckung. Betätigung des Hutschienen-Befestigungselements an der Gerätefrontseite für werkzeuglose Montage und leichte Erreichbarkeit für den Anwender. Mit mechanischer frontseitiger Fehlermeldeanzeige (VisiTrip) zur Anzeige von Auslösungen durch Überlast oder Kurzschluss. Sichere Kontaktanzeige (VisiSafe) des Leitungsschutzschalters, bei grüner Anzeige Sicherheit der Spannungsfreiheit auf der Abgangsseite. Technologie der Auslöseeinheit- thermomagnetisch. Kombinierbar mit dem FI-Schutzschaltern der Baureihe Acti 9 iID, sowie dem FI Block Vigi iC60. Zusätzlich anreihbare Hilfsmodule (optional)- Anzeige von Schaltstellung, Fehlerauslösung, Arbeitsstromauslöser, Unterspannungsauslöser, Überspannungsauslöser. Farbton RAL 9003. Der iC60H Leitungsschutzschalter erfüllt folgende Normen- IEC/EN 60898-1 und IEC/EN 60947-2. Des Weiteren ist diese Baureihe VDE zertifiziert!.
Eaton FAZ-C4/1 LS-Schalter, 4A, 1p, C-Char, ACHochwertiger Leitungsschutzschalter, Bem essungsbetriebsspannung 230400V, Bemessu ngsschaltvermögen 10 kA nach UL 1077, CS A C22.2 No 235 und IECEN 60947-2, Bemess ungsströme bis 63 A, Auslösecharakterist ik B,C,D, FAZ-C414015082785536
Steckbrücke, Rastermass: 6,2 mm, Farbe: blau FBS 2-6 BU
Die 2- bis 50-poligen Brücken können in den zwei Brückenschächten des CLIPLINE complete-Systems bis zu 50 Klemmen in einem Arbeitsgang brücken.
2-Leiter-Schutzleiterklemme mit Drücker 16 mm2 mit Prüföffnung seitliche und mittige Beschriftung für Tragschiene 35 15 und 35 7,5 Push-in CAGE CLAMP 16,00 mm2 grün-gelb 2216-1207
Inhalt: 100 Stück (4,04 € / 1 Stück)
Verteilerfeld 1-feldrig, Höhe 1050 mm, Breite 250 mm, mit APZ-Platz ohne APL-Set, 5-reihig
Ausstattung Montagevorrichtung für Hausanschlusskasten NH00/3 Anschlussraum 5 x Sammelschienen mit: Anschlussklemme, Vorbereitung für 2 x Hauptsicherungsautomaten Abdeckung mit Ausschnitt für 2 x SH-Schalter 2 x Zählerplatte 1 x eHZ 300 x 250 mm mit IP54-Haube Raum für Zusatzanwendungen 150 x 250 mm oberhalb Anschlussraum 150 x 250 mm mit: Vorbereitung für TSG-Empfänger Hutschiene über eHZ 1 x TSG-Absicherung D01 1-polig 10A, plombierbare Abdeckung Anschlussraum 300 x 250 mm vorbereitet für APZ: 1 x RJ45 Buchse, 1 x Montageplatte, 1 x Hutschiene Anschlussraum 300 x 250 mm: 2 x Hauptleitungsabzweigklemme 5-polig 25 mm² isoliert Mit Doppelschloss inkl. 2 Zylinder eingebaut
SPS-Steuerrelais Zelio Logic in kompakter Ausführung. Die Kleinsteuerung (Logikmodul) ist für einfache Automatisierungsaufgaben ausgelegt und bietet eine Alternative zu klassischen Schützsteuerungen oder kundenspezifischen Platinenlösungen. Insgesamt 20 i
2-Leiter-Durchgangsklemme mit Drücker 16 mm2 mit Prüföffnung für Anwendungen Ex geeignet seitliche und mittige Beschriftung für Tragschiene 35 15 und 35 7,5 Push-in CAGE CLAMP 16,00 mm2 blau 2216-1204
Inhalt: 100 Stück (1,90 € / 1 Stück)