- Schaltermaterial
-
Verteilungsbau
- LS-Schalter 1pol.
- LS-Schalter 3pol.
- FI-Schutzschalter
- FI/LS-Schalter
- LS-Schalter Sondertyp
- Hauptschalter
- SLS-Schalter
- Unterputzverteiler
- Aufputzverteiler
- Hohlwandverteiler
- Feuchtraumverteiler - AP
- Feldverteiler
- Zählerschrank
- Baustromverteiler
- Leergehäuse
- Abdeckstreifen
- Klemmsteine
- Neozed
- Diazed
- Absicherungspaket
- Brandschutzschalter
- Schütze u. Relais
- Lasttrennschalter
- Hilfsschalter
- Stromstoßschalter
- Überspannungsschutz
- Dimmer
- Eaton
- Industrie
- Dämmerungsschalter
- Finder
- Steckdose
- Kabelbrücken
- Klingeltrafo
- Leuchtmelder
- Motorschutz
- Netzteil
- Netzüberwachung
- NH-Sicherungen
- NH-Verteiler
- Phasenschienen
- Profil-/ Hutschiene
- Reihenklemmen
- Stromversorgungen
- Stromzähler
- Umschalter
- Zeitschaltuhr
- Sonstige
- Installationsmaterial
- KNX
- Photovoltaik
- Sonderposten
- NEU
Zählerfeld 1-feldrig, 1-Zählerplatz eHZ, 1-Reserveplatz, Höhe 1050 mm, Breite 250 mm,1 Hutschiene im NAR
Leistungsschalter Baugröße S00 für den Motorschutz, CLASS 10 A-Auslöser 10...16 A N-Auslöser 208 A Schraubanschluss Standardschaltvermögen mit querliegenden Hilfsschalter 1S+1Ö Leistungsschalter SIRIUS 3RV2 für Motorschutz zum sicheren Abschalten bei Kurzschluss und Schutz der Verbraucher und Anlage vor Überlast, sowie zur sicheren Trennung der Anlage vom Netz. Die kompakten und klimafesten Leistungsschalter sind durch ihre geringe Abwärme für den Einsatz in Verbraucherabzweigen optimiert, natürlich auch für IE3/IE4-Motoren und gleichermaßen für das Schalten von Gleichstrom. Weltweite Zulassungen (z.B. IEC und UL/CSA) und Anwendungen in explosionsgefährdeten Applikationen (ATEX bzw. IEC Ex) sind selbstverständlich. Verfügbar sind Gerätevarianten für Motorschutz (auch mit Überlastrelais-Funktion), Anlagenschutz, Kurzschlussschutz von Starterkombinationen, Transformatorschutz, als Haupt- und NOT-AUS-Schalter und für den Einsatz in IT-Netzen. Sie sind mit Schraub- oder Federzuganschluss für einen schnellen, wartungsfreien und rüttelsicheren Anschluss, und wahlweise mit eingebautem Hilfsschalter erhältlich. Das umfassende Zubehör, wie z.B. Hilfsschalter, Hilfsauslöser, Meldeschalter etc. ist einheitlich für alle Baugrößen. Der Einsatz verschiedener Energieeinspeisemöglichkeiten, wie dem zugehörigen Einspeisesystem SIRIUS 3RV29, reduziert die Hauptstromkreisverdrahtung erheblich. Die Leistungsschalter 3RV2 lösen die bewährte Baureihe 3RV1 ab. Einfach, effizient, immer aktuell - der SIRIUS Systembaukasten.
Sammelschienenklemmen (SSK16)SammelschienenisolierungAbdeckstreifen (ADS12W)1x N-N-Steckklemme (ZSSKN17N)1x PE-Steckklemme (ZSSKPE34)1 x Patchkabel (PL100)2 x Patch-Patch-Verbinder (PPV5)
Schaltuhr elektromechanisch ohne Gangreserve Tagesuhr 1W 16A
Die Sicherungsklemme ST 4-FSI/C nimmt als Sicherungselement Flachsicherungen nach ISO/DIS 8820/DIN 72581-3 oder wahlweise den thermischen Sicherungsautomat TCP /DC32V auf. Varianten mit Leuchtanzeige zur Signalisierung einer ausgelösten Sicherung.
Sammelschienenklemmen (SSK35)SammelschienenisolierungAbdeckstreifen (ADS12W)1x N-N-Steckklemme (ZSSKN17N)1x PE-Steckklemme (ZSSKPE34)1 x Patchkabel (PL150)2 x Patch-Patch-Verbinder (PPV5)
Kleinverteiler AK 42, Kleinverteiler - Industrie Qualität -, 3-reihig, 42 Teilungseinheiten, 150 mm Schienenabstand, integrierte Belüftungselemente zur Verminderung der Kondenswassererbildung, oben elastische Einführungen, Abdeck- und Beschriftungsstreifen, zusätzlichen Doppelmembranstutzen und weiterem Zubehör, Schutzart IP65, Schutzklasse II, Bemessungsisolationsspannung Ui 1000V AC, Bemessungsisolationsspannung Ui 1500V DC, Halogenfrei, VDE geprüft, Schlagfestigkeit IK08, IQ - Industrie Qualität, 42 Teilungseinheiten, 315 x 600 x 155, schraubenlose PE/N-Klemmschiene mit jeweils 6 schraubbaren Klemmstellen 2,5 - 16 mm², 21 / 2 x 14 schraubenlosen Klemmstellen 1,5 mm-4 mm²,
Die SD 200 erweitern das bewährte System pro M compact® um Lasttrennschaltern. Die Baureihe ist in 1- bis 4-poligen Ausführungen mit Bemessungsströmen von 16 bis 63 A verfügbar und haben Trennereigenschaften nach DIN EN 60947-3. Der SD 200 eröffnet mit einer Bemessungsspannung von 253/440 V AC, einer bedingten Kurzschlussfestigkeit von 25 kA, Zylinder-Hubklemme mit 2 Klemmstellen und Hintersteckschutz neue Einsatzmöglichkeiten. Die „Real CPI” Schaltstellungsanzeige gibt den Schaltzustand des Gerätes eindeutig an. eine eindeutige Seine volle Kompatibilität mit allen MCB Zubehörteilen machen ihn einzigartig auf seinem Gebiet.
Hauptleitungsabzweigklemme 70mm² (Typ C). Farbe schwarz. Montageart DIN-Schiene
Inhalt: 3 Stück (17,15 € / 1 Stück)
Zählerfeld 3-feldrig, Höhe 1050 mm, Breite 750 mm, 3-3.HZ, mit Hauptschalter plombierbar, Sammelschienensystem 5-polig
Zeitrelais, Multifunktion 2 Wechsler, 27 Funktionen 7 Zeitbereiche (0,05 s100 h) AC/DC 12-240 V bei AC 50/60 Hz mit LED, Schraubanschluss Zeitrelais SIRIUS 3RP25, 27 Funktionen, für alle zeitverzögerten Schaltvorgänge in Steuer-, Anlass-, Schutz- und Regelschaltungen. Großer Einsatzbereich durch vielfältige Funktionen auf kleinstem Raum. Weltweit einsetzbar dank internationaler Approbationen und Weitspannungsbereich. Das innovative Gehäusekonzept in Industriebauform bietet beschriftete Abdeckklappen, abnehmbare Anschlussklemmen und vieles mehr. Lieferbar als Einzel- oder Multifunktionszeitrelais mit Halbleiterausgang oder als elektromechanisches Relais mit und ohne Zwangsführung, jeweils mit verschiedenen Anschlusstechniken. Im Lieferumfang sind bereits Klebefolien zur Funktionskennzeichnung enthalten. Die Zeitrelais 3RP25 lösen die bewährte Baureihe 3RP15 ab. SIRIUS Relais - ein Programm für alle Fälle.
Reihenklemme 300mm², 1polig, 4 Anschlüsse, Farbe braun, Kupfer/Aluminium Variante, RKA300-1-4br
Einsatz für Industriesteckverbinder, bestehend aus Kontaktelement und Isolierkörper. HDC S42 FS
seitliche Beschriftungnur auf TS 35 x 152,3 mm dickseitliche Verdrahtunghorizontale Bauform10 - 50 mm²150 AKlemmenbreite: 20 mmPowerClamp
Der Leitungsschutzschalter ist der Sicherungsautomat für Kurzschlussschutz. Leitungsschutzschalter 230400V 6kA, 1-polig, B, 32A, T=70mm. Die Leitungsschutzschalter von Siemens als wichtiger Bestandteil der SENTRON Schutzkomponenten für die Elektroinstallation bieten effektiven Personen- und Anlagenschutz durch sicheres Abschalten im überlast- und Kurzschlussfall. Komfortable Montage- und Anschlusstechnik, einheitliche Zusatzkomponenten und ein durchgängiges Design das sind die Kennzeichen der Gerätefamilie. Ob für Infrastruktur oder für industrielle Anforderungen, Siemens bietet Leitungsschutzschalter für alle Anwendungen und jedes Einsatzgebiet.Die Siemens Leitungsschutzschalter zeichnen sich vor allem aus durch: 1. Effektiven Personen-, Investitions- und Anlagenschutz vor überlast und Kurzschluss. 2. Einheitliches Zubehör in breiter Vielfalt einfach zu montieren und jederzeit austauschbar. 3. Zuverlässige Sicherheit bei der Installation dank standardmässig enthaltenem Umgreif- und Berührungsschutz. 4. Werkzeugloses Lösen von der Hutschiene bzw. aus dem Sammelschienenverbund durch komfortable Schieber-Hand-Betätigung. 5. Klar ersichtliche Schaltstellungsanzeige. 6. Datamatrix-Code vorne am Gerät bietet schnell und einfach alle Infos rund um den Leitungsschutzschalter. 7. Normgerechter Schutz mit weltweiten Zulassungen. 8. www.siemens.deleitungsschutzschalter. Siemens bietet für die sichere, effiziente elektrische Infrastruktur in Gebäuden und Industrie ein durchgängiges Portfolio an Schutz-, Schalt-, Mess- und überwachungsgeräten, Installationsverteilern sowie Schaltern und Steckdosen. 5SY6132-6
HENSEL MI0310 MI-LEERGEHAEUSEB H T mm 300 450 214 max. Einbautiefe b ei Montageplatte 191 mm max. Einbautief e bei Tragschiene 180 mm Mi 0310
Hauptleitungsabzweigklemme, 90SL, 1-polig, 80 A, 1,5mm²-25 mm²Nennstrom: 80Anzahl der Anschlüsse AWG 4: keine AngabeBreite: 30Höhe: 52Polzahl: 1Tiefe: 49Montageart: SchraubeAnschlussart: keine AngabeAnzahl der Anschlüsse 16 mm²: keine AngabeAnzahl der Anschlüsse 25 mm²: keine AngabeAnzahl der Anschlüsse > 25 mm²: keine AngabeAnzahl der Anschlüsse < AWG 6: keine AngabeAnzahl der Anschlüsse AWG 6: keine AngabeAnzahl der Anschlüsse 250 kcmil: keine AngabeAnzahl der Anschlüsse gesamt: keine AngabeAnzahl der Anschlüsse > 250 kcmil: keine AngabeAnzahl der Anschlüsse < 6 mm²: keine AngabeAnzahl der Anschlüsse 10 mm²: keine AngabeAnzahl der Anschlüsse AWG 2: keine Angabe
Tragschienenbefestigung universN einfach. Tragschienenbefestigung von Tragschienen bei unterschiedlichem Niveau (pro Tragschiene 2x bestellen) passend zum Schrank.
Eaton M22-I3 Aufbaugehäuse, 3 Einbaustellenmit Edelstahlschrauben, Gehäuseunterteil anthrazit M22-I3
Zählerfeld 3-feldrig, 5-Zählerplätze 3.HZ, Höhe 1350 mm, Breite 750 mm, 1-Reserveplatz ,Sammelschienensystem 5-polig, mit Hauptschalter plombierbar
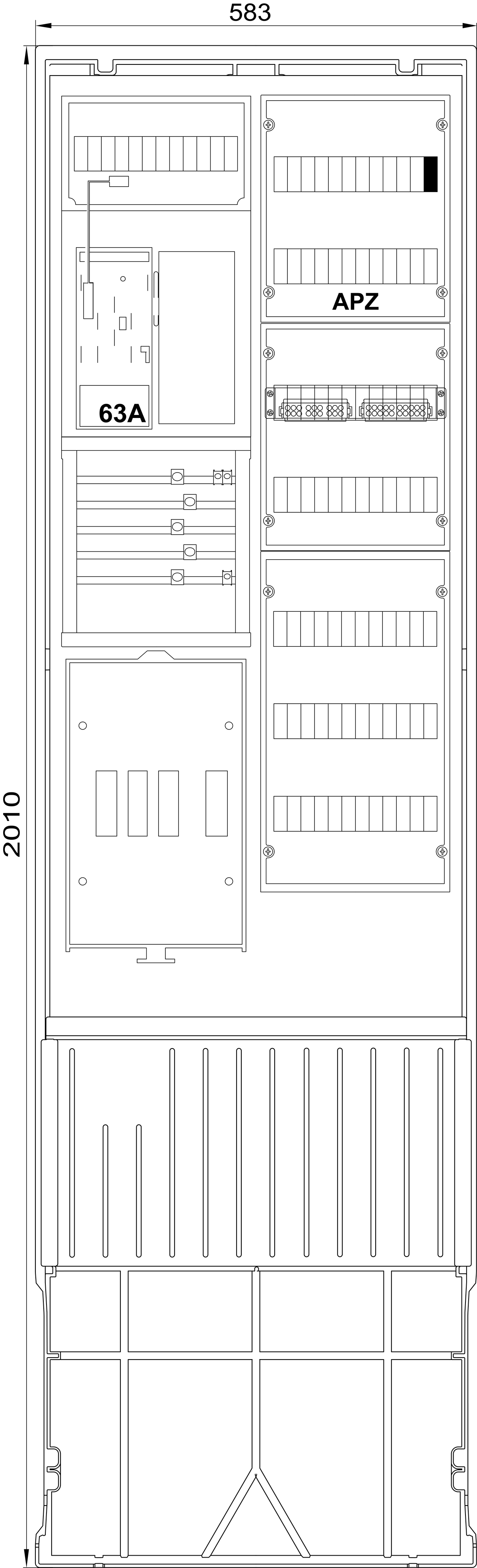
Komplettschrank, univers Z, 1 ZP BKE-I, APZ, VT5, H=1100mm, 2-feld., ESA
Zählerfeld 2-feldrig, 4-Zählerplätze 3.HZ 16mm² Verdrahtung, Höhe 1350 mm, Breite 250 mm,Sammelschienensystem 5-polig, mit Zählersteckklemme und Stiften
2-Leiter-Durchgangsklemme 35 mm2 mit integrierter Abschlussplatte seitliche und mittige Beschriftung nur auf Tragschiene 35 15 CAGE CLAMP 35,00 mm2 grau 285-635
Bezeichnungsschilderäste für Reihenklemmen Typ 9700 ?, 10 Schilder pro Ast, Beschriftung: E 9704 A EG B
Inhalt: 100 Stück (0,44 € / 1 Stück)