- Schaltermaterial
-
Verteilungsbau
- LS-Schalter 1pol.
- LS-Schalter 3pol.
- FI-Schutzschalter
- FI/LS-Schalter
- LS-Schalter Sondertyp
- Hauptschalter
- SLS-Schalter
- Unterputzverteiler
- Aufputzverteiler
- Hohlwandverteiler
- Feuchtraumverteiler - AP
- Feldverteiler
- Zählerschrank
- Baustromverteiler
- Leergehäuse
- Abdeckstreifen
- Klemmsteine
- Neozed
- Diazed
- Absicherungspaket
- Brandschutzschalter
- Schütze u. Relais
- Lasttrennschalter
- Hilfsschalter
- Stromstoßschalter
- Überspannungsschutz
- Dimmer
- Eaton
- Industrie
- Dämmerungsschalter
- Finder
- Steckdose
- Kabelbrücken
- Klingeltrafo
- Leuchtmelder
- Motorschutz
- Netzteil
- Netzüberwachung
- NH-Sicherungen
- NH-Verteiler
- Phasenschienen
- Profil-/ Hutschiene
- Reihenklemmen
- Stromversorgungen
- Stromzähler
- Umschalter
- Zeitschaltuhr
- Sonstige
- Installationsmaterial
- KNX
- Photovoltaik
- Sonderposten
- NEU
Verdrahtungsbrücken 10 mm² flexibel, bestehend aus Gabelschuhen und Aderendhülsen, Farbe: schwarz.
Phasenverteilerblock 210A, PDB210. Farbe: grau/transparent. Anzahl Pole 1. Passend für CU Leiter
Lasttrennschalter 3polig 40A für Hutschiene oder Montageplatte. Lasttrennschalter für die Montage auf Hutschiene oder Montageplatte Drehantrieb direkt am Gerät im AUS-Zustand mit einem Vorhängeschloss verriegelbar Gewährleistet das Ein- und Ausschalten unter Last und eine Sicherheitstrennfunktion in allen Niederspannungsstromkreisen.Bemessungsdauerstrom Iu: 40Anzahl der Hilfskontakte als Wechsler: keine AngabeBedingter Bemessungskurzschlussstrom Iq: 50Motorantrieb optional: neinMotorantrieb integriert: neinBemessungsdauerstrom bei AC-21, 400 V: 40Ausführung als Hauptschalter: jaAnschlussart Hauptstromkreis: SchraubanschlussAusführung als Wartungs-/Reparaturschalter: jaAusführung als Sicherheitsschalter: jaAusführung als NOT-AUS-Einrichtung: neinAnzahl der Schalter: 1Schaltleistung bei 400 V: 26Geeignet für Bodenbefestigung: jaGeeignet für Frontbefestigung 4-Loch: neinGeeignet für Frontbefestigung Zentral: neinGeeignet für Verteilereinbau: jaBemessungsbetriebsspannung: 380Geeignet für Zwischenbau: neinZubehör / Ersatzteile:HZC010 HZC311 HZC112 HZC111 HZC211 HZC312 HZC113
Die Hilfskontaktblöcke werden bei der Schaltung von Hilfsstromkreisen und Steuerstromkreisen in Standardindustrieumgebungen eingesetzt. Typen von Hilfskontaktblöcken für frontseitige Montage: – CA4 1 oder 4-poliger Block mit Sofort-Schließer- und Öffnerkontakten – CC4 1-poliger Block, mit voreilendem Schließer und nacheilendem Öffner – CAT4 2-poliger Block mit 1-Sofort-Schließer- und 1-Öffnerkontakt und Anschluss für A1 / A2 Spulenklemmen vorn. Wählen Sie die Art der 4-poligen CA4-..E, CA4-..M, CA4-..U oder CA4-..N Hilfskontaktblöcke für den jeweiligen Schütz- oder Hilfsschütztyp anhand der Standardanforderungen (siehe Kennzeichnung und Lage der Anschlussklemmen). Typen von Hilfskontaktblöcken für seitliche Montage: – CAL4 2-poliger Block mit Sofort-Schließer- und Öffnerkontakten. Zum Anbau auf der rechten bzw. linken Seite des Schützes. Die Hilfskontaktblöcke mit im Lieferzustand offenen Schraubklemmen sind gegen versehentliches Berühren geschützt und verfügen über die entsprechende Funktionskennzeichnung.
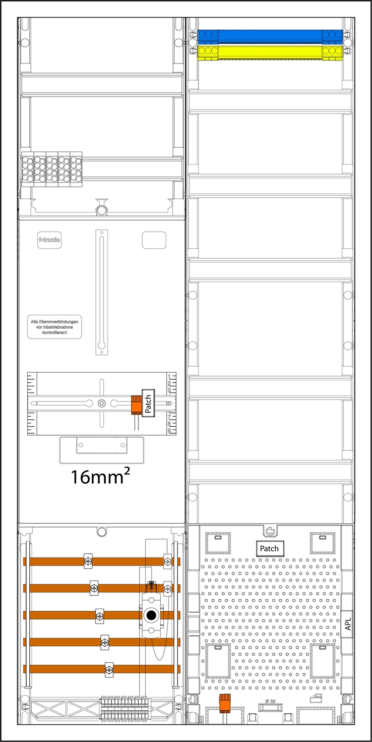
Zählerfeld 3-feldrig, 6-Zählerplätze 3.HZ, Höhe 1200mm, Breite 750mm, Sammelschienensystem 5-polig
Leergehäuse IP65 Polystyrol, Kasten und Deckel Polystyrol grau ähnlich RAL 7035, metrische Vorprägungen AKL 3-g
UL. GL.
Die Mediafelder der Baureihe MM sind für den Einbau in Kleinverteiler vorgesehen. Die Felder sind unbestückt und unverdrahtet. Durch das großzügige Platzangebot können alle denkbaren Multimediakomponenten wie z. B. Router, Switch etc. eingebaut werden. Modulare Lochblech-Montageplatten ermöglichen die einfache Montage der Multimediageräte.
Das LED-Modul SIRIUS ACT bietet brillante Leuchtkraft dank energieeffizienter LED-Technologie zur Beleuchtung der Befehls- und Meldegeräte.LED-Modul mit integrierter LEDTechnische Details:AC/DC Betriebsspannung: 24-240 VFarbe: RotVerbindung: SchraubanschlussMontage: FrontplattenbefestigungSchutzart: Hohe Schutzart für industrielle AnwendungenKompatibilität: Anschluss über PROFINET, AS-Interface oder IO-Link möglichVerfügbare Ausführungen: Mehrere Farben, verschiedene Spannungsvarianten und AnschlussartenKunden Vorteile:Einfacher Montage: Montage mit nur einer Hand möglich, ohne Spezialwerkzeug.100% Verdrehschutz: Integriertes Konzept vereinfacht die Installation.Hohe Flexibilität durch reduzierte Verdrahtung und minimierte Fehlerquellen.Industrietauglich und für den Außeneinsatz geeignet.Komfortable Unterstützung durch grafischen Online-Konfigurator für Auswahl und Bestellung.Umfangreiche Dokumentation für eine einfache Nutzung verfügbar.
Sammelschienenklemmen (SSK35)SammelschienenisolierungAbdeckstreifen (ADS12W)1x N-N-Steckklemme (ZSSKN17N)1x PE-Steckklemme (ZSSKPE34)1 x Patchkabel (PL150)2 x Patch-Patch-Verbinder (PPV5)
Reihenklemme mit mehreren Ebenen zum Anschliessen oder Verbinden von Leitern mit daürhaft sicherem Kontakt. Gehärteter Stahl hält den mechanischen Kräften stand, Zinn-beschichtetes Kupfer sorgt für beste Leitfähigkeit. Platzsparende Bauform. A2T 2.5
Inhalt: 50 Stück (2,00 € / 1 Stück)
IP54 Aufrüstsatz für Gehäuse. Passend für Bauhöhe 500 mm. Set-Inhalt: Schwenkhebelgriff, Schubstangen, Dichtungsband, IP54 Aufkleber.
Leitungsschutzschalter Acti 9 iC60N, 6kA (IEC/EN 60898-1), 10kA (IEC/EN 60947-2). 1-polig, Nennstrom 25A, B-Charakteristik, Betriebsspannung (Ue) 220-240V AC, Isolationsspannung (Ui) 500V AC. Doppel-Anschlussklemme für Kabel und Stiftkammschiene an der Ge
Zählerfeld 1-feldrig, Höhe 1350 mm, Breite 250 mm,1-Zählerplatz 3.HZ lange Kabel, Sammelschienensystem 5-polig, mit Zählersteckklemmen-Set ,mit Hauptschalter sperrbar, Verteilerfeld 2-reihig
Sammelschienenklemmen (SSK16)SammelschienenisolierungAbdeckstreifen (ADS12W)1x N-N-Steckklemme (ZSSKN17N)1x PE-Steckklemme (ZSSKPE34)1 x Patchkabel (PL100)2 x Patch-Patch-Verbinder (PPV5)SLS SchalterÜberspannungsschutz für Gebäude ohne äußeren Blitzschutz (909331)
Abschlussdeckel, Länge: 61 mm, Breite: 2,2 mm, Höhe: 41,5 mm, Farbe: grau
Wendekombination AC-3,3 kW400 V,AC230V,5060 Hz 3-polig, Baugrösse S00 Schraubanschluss elektrische und mechanische Verriegelung Wendekombination SIRIUS 3RA23 zum Schalten von Motoren inkl. Drehrichtungswechsel.Die Wendekombination 3RA23 ist eine geprüfte und werkseitig vormontierte Kombination aus zwei Schützen 3RT2 gleicher Leistung, die bereits fertig verdrahtet sowie mechanisch und elektrisch verriegelt sind. Sie sind klimafest, weltweit zugelassen z. B. IEC und ULCSA und IE3IE4 ready.Die Wendekombinationen 3RA23 sind mit AC- und DC-Betätigung in den Baugrössen S00 bis S3 erhältlich. Sie werden in Schraub- und Federzuganschlusstechnik für Montage auf Hutschiene oder Schraubbefestigung angeboten.Das Zubehör der Schütze 3RT2 ist einheitlich für alle Baugrössen und kann auch für die Schützkombinationen verwendet werden.Die Wendekombinationen 3RA23 lösen die bewährte Baureihe 3RA13 ab.Einfach, effizient, immer aktüll der SIRIUS Systembaukasten. 3RA2315-8XB30-1AP0
Verteilerfeld 1-feldrig, Höhe 1050 mm, Breite 250 mm, 5-reihig, Obereranschlussraum geschlossen, APZ-Platz ohne APL-Set
Zählerfeld 1-feldrig, 1-Zählerplatz 3.HZ mit 16mm² Verdrahtung, Höhe 1050 mm, Breite 250 mm, Sammelschienensystem 5-polig, mit Zählersteckklemmen und Stiften
Tür, Volta, APV, 3-reih., klarsicht, mit Türschild. Tür für Aufputz-Kleinverteiler aus Stahlblech pulverbeschichtet und eingebrannt. Tür mit Klarsichtausschnitt aus Kunststoff, frontbündig mit innenliegenden handbedienbaren Scharnieren, Türverschluss mit frontbündiger Griffmulde und selbsttätig zurückklappenden Griff. Türanschlag rechts oder links.
Verteilerfeld 1-feldrig, Höhe 1350 mm, Breite 250 mm, 7-reihig
Sammelschienenklemmen (SSK16)SammelschienenisolierungAbdeckstreifen (ADS12W)1x N-N-Steckklemme (ZSSKN17N)1x PE-Steckklemme (ZSSKPE34)
Tastenlinse, Sortiment: Zusatzausrüstung, Einzelgerät, Beschreibung: 5 Zeichen: Schrifthöhe 5 mm, > 5 Zeichen: Schrifthöhe 3 mm, Bauform: flach, Auswahl nach: unbeschriftet, verwendbar für: M22(S)-DL-X, M22(S)-DRL-X, M22S-DGL-X, M30C-FDL-X, M30C-FDRL-X, Anbindung an SmartWire-DT: nein
Hilfskontakt für Motorschutzschalter 1 Schließer und 1 Öffner 3,5A 230VAnzahl der Kontakte als Wechsler: keine AngabeAnzahl der Fehlersignalschalter: keine AngabeAusführung: aufsteckbarMontageart: SeitenanbauBemessungsbetriebsstrom Ie bei AC-15, 230 V: 3,5Anzahl der Kontakte als Schließer: 1Anzahl der Kontakte als Öffner: 1Ausführung des elektrischen Anschlusses: SchraubanschlussFassung: keine Angabe