- Schaltermaterial
-
Verteilungsbau
- LS-Schalter 1pol.
- LS-Schalter 3pol.
- FI-Schutzschalter
- FI/LS-Schalter
- LS-Schalter Sondertyp
- Hauptschalter
- SLS-Schalter
- Unterputzverteiler
- Aufputzverteiler
- Hohlwandverteiler
- Feuchtraumverteiler - AP
- Feldverteiler
- Zählerschrank
- Baustromverteiler
- Leergehäuse
- Abdeckstreifen
- Klemmsteine
- Neozed
- Diazed
- Absicherungspaket
- Brandschutzschalter
- Schütze u. Relais
- Lasttrennschalter
- Hilfsschalter
- Stromstoßschalter
- Überspannungsschutz
- Dimmer
- Eaton
- Industrie
- Dämmerungsschalter
- Finder
- Steckdose
- Kabelbrücken
- Klingeltrafo
- Leuchtmelder
- Motorschutz
- Netzteil
- Netzüberwachung
- NH-Sicherungen
- NH-Verteiler
- Phasenschienen
- Profil-/ Hutschiene
- Reihenklemmen
- Stromversorgungen
- Stromzähler
- Umschalter
- Zeitschaltuhr
- Sonstige
- Installationsmaterial
- KNX
- Photovoltaik
- Sonderposten
- NEU
1St. Wago 782-604 DURCHGANGSKLEMME 6Qmm BLAU800 V, kV, 3 782-604
Eaton M22-WKV Wahltaste, Knebel, V-Stellung, schwarz, tastendWahltaste mit Knebelgriff.Die Taste erfü llt die Schutzart IP66 und ist für den w eltweiten Einsatz zugelassen. M22-WKV
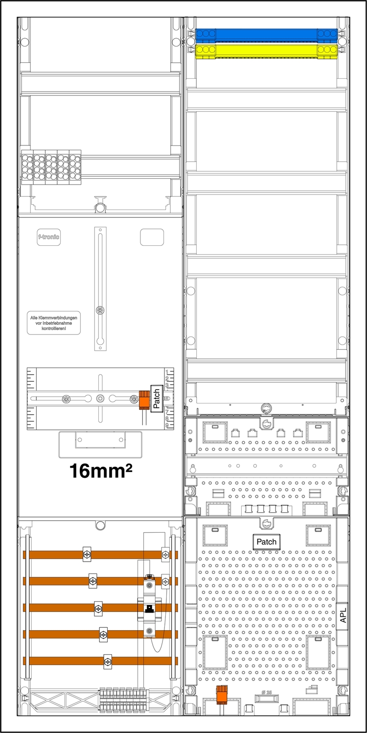
Verteilerfeld 1-feldrig, Höhe 1050mm, Breite 250mm, 3-rehig, APZ-Platz inklusive APL-Set, zRfZ2
ABB LS-Schalter 3pol. C 32A S203-C32Die Sicherungsautomaten der Baureihe 200 wirken strombegrenzend. Sie haben zwei verschiedene, auf das Schaltwerk wirkend e Auslöser: den verzögert arbeitenden th ermischen Auslöser für den Überlastschut z und den elektromagnetischen Schnellaus löser.schen Auslöser für den Überlastsch utz und den elektromagnetischen Schnella uslöser. Polzahl: 3, Bemessungsstrom In A: 32. Ubmax.: 440V AC. S203-C32
Kunststoff-Sicherungssockel D01 E14 16A 3polig Hutschiene Rahmenklemme Abdeckung. D01-Sicherungsunterteil mit Abdeckung für Hutschienenmontage. Geeignet für Sicherungseinsätze und Hülsen-Pass Einsätze nach DIN VDE 0636-3.Bemessungsstrom: 16Polzahl: 3Montageart: sonstigeBaugröße: D01Werkstoff: PorzellanAusführung mit Abdeckung: jaBemessungsspannung: 400
Komplettgerät, Metallprogramm DM 22 mm. Leuchtdrucktaster, flach, rot. Spannung 24 V AC/DC. Komplettgerät, rund, Bright-LED, mit Schraubanschluss. Lieferung Mit Befestigungsflansch und Hilfsschalterblock.
Sammelschienenklemmen (SSK16)SammelschienenisolierungAbdeckstreifen (ADS12W)1x N-N-Steckklemme (ZSSKN17N)1x PE-Steckklemme (ZSSKPE34)1 x Patchkabel (PL100)2 x Patch-Patch-Verbinder (PPV5)SLS SchalterÜberspannungsschutz für Gebäude ohne äußeren Blitzschutz (909331)
Sammelschienenklemmen (SSK16)SammelschienenisolierungAbdeckstreifen (ADS12W)1x N-N-Steckklemme (ZSSKN17N)1x PE-Steckklemme (ZSSKPE34)1 x Patchkabel (PL100)2 x Patch-Patch-Verbinder (PPV5)SLS SchalterÜberspannungsschutz für Gebäude ohne äußeren Blitzschutz (909331)
Zählerfeld 2-feldrig, 2-Zählerplatz 3.HZ, Höhe 1050 mm, Breite 500 mm, Sammelschienensystem 5-polig, mit Zählersteckklemmen-Set und Hauptschalter sperrbar
Induktive NäherungsschalterIFFM 08P17A6/KS35LMaterialnr.: 10143586Induktive Näherungsschalter - subminiature 2 mmPNP Schliesser (NO)Kabelstecker M8-25 75 CIP 67
Hilfsschalter HKF1 mit unterschiedlichen Kontaktbelegungen werden bei den Hauptgeräten frontseitig aufgesteckt
Abschluss- und Zwischenplatte 0,8 mm dick orange 2102-1292
Inhalt: 100 Stück (0,43 € / 1 Stück)
Zählerfeld 3-feldrig, 5-Zählerplätze 3.HZ, Höhe 1350mm, Breite 750mm, 1-Reserveplatz, Sammelschienensystem 5-polig, mit Zählersteckklemmen-Set und Hauptschalter plombierbar
Ausstattung Montagevorrichtung für Hausanschlusskasten NH00/3 Anschlussraum 5 x Sammelschienen mit: Anschlussklemme, Vorbereitung für Hauptsicherungsautomat 1 x TSG-Absicherung B10A 1-polig 25kA, plombierbare Abdeckung 2 x Zählerplatte 450 x 250 mm mit IP54-Haube Anschlussraum 300 x 250 mm mit: Hauptleitungsabzweigklemme 5-polig 25 mm² isoliert Freibereich (Leerplatz) ca. 400 x 250 mm für Nachrüstung Mit Doppelschloss inkl. 1 Zylinder eingebaut
Leuchtdrucktaster, 22 mm, rund, Metall, hochglanz, grün, Druckknopf, flach, tastend, mit Halter, 1S, LED-Modul mit integrierter LED AC/DC 24V, Schraubanschluss Leuchtdrucktaster SIRIUS ACT zur Schaltung und Steuerung elektrischer Verbraucher. Unter dem Markennamen SIRIUS ACT bietet Siemens ein einzigartiges Portfolio an Befehls- und Meldegeräten mit weltweiten Produkt-Zulassungen in drei modernen Designreihen aus robustem Echtmetall und hochwertigem Kunststoff. Das innovative Aufschnappkonzept vereinfacht die Montage so weit, dass dafür nur eine Hand und kein Spezialwerkzeug erforderlich ist. Als Montagebohrungen genügen nutfreie Löcher, da bereits ein 100%iger Verdrehschutz integriert ist. Dank der durchgängig hohen Schutzart sind die robusten Geräte industrietauglich und für den Außeneinsatz geeignet. Sogar die Reinigung mit Hochdruckstrahl ist möglich. Weder Staub, Öle noch aggressive Laugen können den zuverlässigen Betrieb stören. Neben der Standardverdrahtung können die meisten Geräte auch über PROFINET, AS-Interface oder IO-Link an die Steuerung angebunden werden. Damit reduzieren Sie Ihren Verdrahtungsaufwand, minimieren Fehlerquellen und gewinnen mehr Flexibilität. Komfortabel unterstützt der grafische Online-Konfigurator bei Auswahl und Bestellung von Einzelgeräten, Gehäusen und Beschriftungen. Umfangreiche Dokumentation (z.B. Handbuch, 3D-Daten, Anschlussdiagramm) ist verfügbar. Lieferbare Ausführungen: mehrere Farben, beleuchtet/unbeleuchtet, mit/ohne Beschriftung, verrastende/tastende Betätigung, verschiedene Druckknopf- und Frontringhöhen. Hinweis: Komplettgerät, Lieferung inklusive Halter und Module. SIRIUS ACT - Performance in Action beim Befehlen und Melden. Einfach montiert, einfach stark, einfach perfekt.
Eaton FL4-X Flansch, geschlossen, HxBxT=116x329x23mmmit eingeschäumter Dichtung einschliessl ich Keilverbindung FL4-X
Installationsschütz 25A 3 Schließer 230V. Schütz in kompakter Bauweise nach EN 61095 und DIN VDE 0637-3 sowie Berührungsschutz nach DIN VDE 0106 Teil 100. Kontaktstellungsanzeige durch Anzeigefenster, integriertes Beschriftungsfeld und geeignet zum nachträglichen Anbau von Zusatzeinrichtung. Hinweise: Werden direkt mehrere Geräte eingebaut, ist neben jedem zweiten Gerät ein Distanzstück (1/2 PLE) einzubauen.Bemessungsbetriebsstrom: 25Gebrauchskategorie: 7Max. Leuchtstofflampenlast: 950Einbautiefe: 60Schieber für Handschaltung: neinMax. Leuchtstofflampenlast (Duo-Schaltung): 1990Spannungsart der Betätigungsspannung: ACBemessungsbetriebsspannung: 400Anzahl der Kontakte als Schließer: 3Bemessungsbetätigungsspannung: 230Spannungsart der Betriebsspannung: ACMax. Glühlampenlast: 1900Anzahl der Kontakte als Öffner: keine AngabeAnzahl der Teilungseinheiten: 2Max. Leuchtstofflampenlast (parallel kompensiert): 810Schutzart (IP): IP2XZusatzeinrichtungen möglich: ja: Zubehör / Ersatzteile:ESC080 ESC002
Zählerfeld 2-feldrig, 4-Zählerplätze 3.HZ, Höhe 1350 mm, Breite 500 mm, Sammelschienensystem 5-polig, mit Hauptschalter sperrbar
Leergehäuse ZF111. Schutzart IP54. Höhe1100 mm. Breite 300mm.
Sammelschienenklemmen (SSK16)SammelschienenisolierungAbdeckstreifen (ADS12W)1x N-N-Steckklemme (ZSSKN17N)1x PE-Steckklemme (ZSSKPE34)1 x Patchkabel (PL100)2 x Patch-Patch-Verbinder (PPV5)SLS SchalterÜberspannungsschutz für Gebäude ohne äußeren Blitzschutz (909331)
Sammelschienenklemmen (SSK16)Sammelschienenisolierung
Kabelbrücke NYAF 10 mm², Länge: 250mm, Stift / Stift , Farbe: Blau
SLS-Schalter 4 polig 3P+N E-Charakteristik 35A für Sammelschiene QuickConnect. SH-Schalter nach DIN VDE 0641-21 und Maßnorm DIN 43880 Baugröße 6. SLS in verschieden poliger Bauform, einpolig schaltend, mit separater Kontaktstellungsanzeige. Steckkontaktierung für direkte Sammelschienenmontage. Der serienmäßige Multifunktionsverschluß ermöglicht folgende Sperrungen: für den Kunden gegen unbeabsichtigtes oder mutwilliges Schalten, für den Installateur mit einem Vorhängeschloss beim Arbeiten in der Anlage, für das VNB mit Plombierdraht, Vorhängeschloss oder Spezialschlüssel.
Schnellmontage-Endhalter, Brennbarkeitsklasse V0 nach UL 94, für Tragschiene NS 357,5 oder NS 3515, beschriftbar mit UC-TM 5, UC-TMF 5, KLM 2, KLM3 und KML3L, Parkmöglichkeit für FBS5, FBS6, KSS 5, KSS 6, Breite: 5,15 mm, Farbe: grau CLIPFIX 35-5 V0
Inhalt: 100 Stück (0,59 € / 1 Stück)