- Schaltermaterial
-
Verteilungsbau
- LS-Schalter 1pol.
- LS-Schalter 3pol.
- FI-Schutzschalter
- FI/LS-Schalter
- LS-Schalter Sondertyp
- Hauptschalter
- SLS-Schalter
- Unterputzverteiler
- Aufputzverteiler
- Hohlwandverteiler
- Feuchtraumverteiler - AP
- Feldverteiler
- Zählerschrank
- Baustromverteiler
- Leergehäuse
- Abdeckstreifen
- Klemmsteine
- Neozed
- Diazed
- Absicherungspaket
- Brandschutzschalter
- Schütze u. Relais
- Lasttrennschalter
- Hilfsschalter
- Stromstoßschalter
- Überspannungsschutz
- Dimmer
- Eaton
- Industrie
- Dämmerungsschalter
- Finder
- Steckdose
- Kabelbrücken
- Klingeltrafo
- Leuchtmelder
- Motorschutz
- Netzteil
- Netzüberwachung
- NH-Sicherungen
- NH-Verteiler
- Phasenschienen
- Profil-/ Hutschiene
- Reihenklemmen
- Stromversorgungen
- Stromzähler
- Umschalter
- Zeitschaltuhr
- Sonstige
- Installationsmaterial
- KNX
- Photovoltaik
- Sonderposten
- NEU
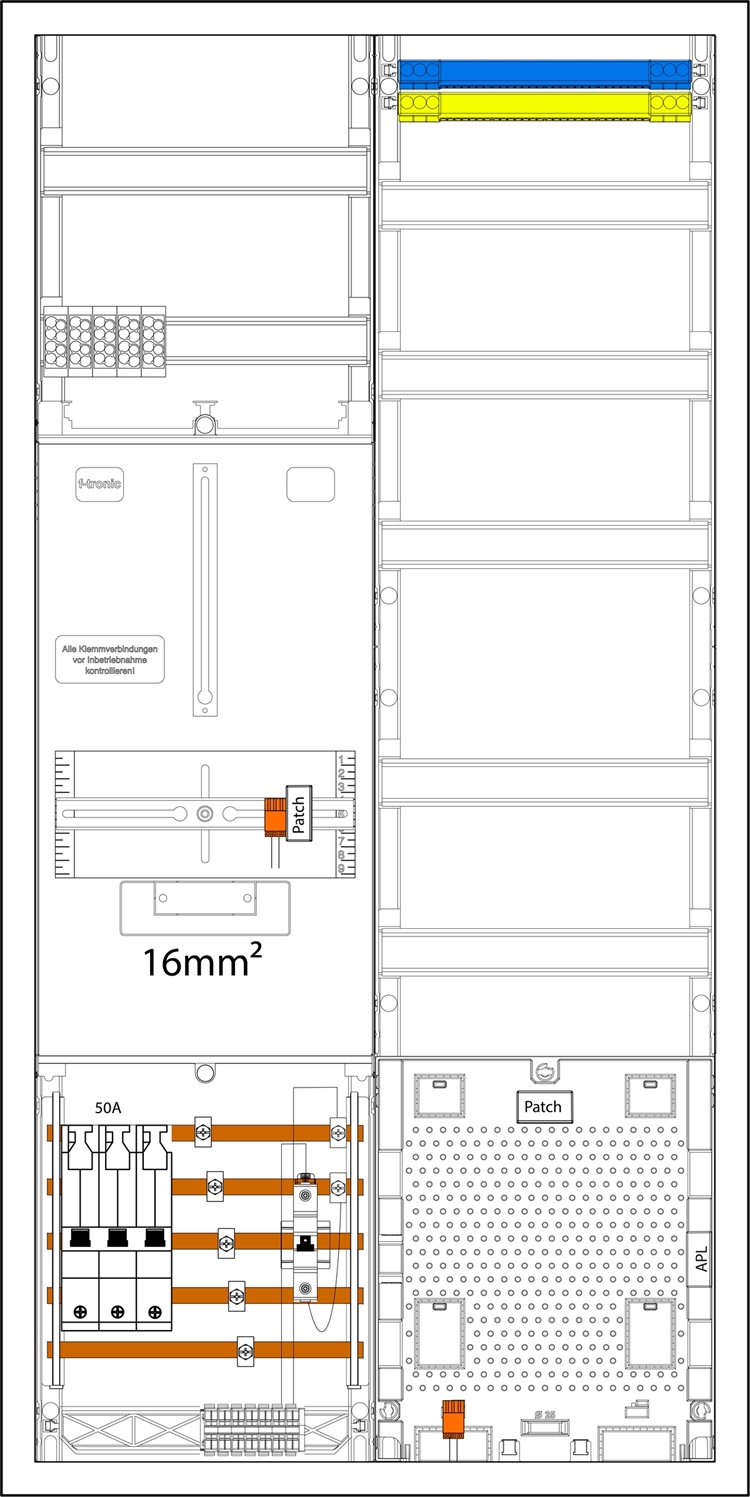
Sammelschienenklemmen (SSK16)SammelschienenisolierungAbdeckstreifen (ADS12W)1x N-N-Steckklemme (ZSSKN17N)1x PE-Steckklemme (ZSSKPE34)1 x Patchkabel (PL100)2 x Patch-Patch-Verbinder (PPV5)SLS SchalterÜberspannungsschutz für Gebäude ohne äußeren Blitzschutz (909331)
Zählertrageplatte 2, ZSZTP-2. Zählerform 3.HZ. Höhe 300mm. Farbe weiß.
SLS-Schalter 3 polig E-Charakteristik 63A für Hutschienenmontage. SH-Schalter nach E-DIN VDE 0641-21 und Maßnorm DIN 43 880 Baugröße 2. SLS in 1-oder 3-poliger Bauform, einpolig schaltend, mit separater Kontaktstellungsanzeige. Zur direkten Montage auf Hutschiene. Der serienmäßige (Keine Vorschläge) ermöglicht folgende Sperrungen: für den Kunden gegen unbeabsichtigtes oder mutwilliges Schalten für den Installateur mit einem Vorhängeschloss beim Arbeiten in der Anlage für das VNB mit Plombierdraht, Vorhängeschloss oder Spezialschlüssel.Bemessungsstrom: 63Auslösecharakteristik: EFrequenz: 50Polzahl: 3Montageart: DIN-SchieneBemessungsspannung: 400Baugröße (nach DIN 43880): 2Bemessungsisolationsspannung Ui: 690Mitschaltender Neutralleiter: neinVerschmutzungsgrad: 3Bemessungsstoßspannungsfestigkeit: 6Schutzart (IP): IP20Bemessungsabschaltvermögen: 25Überspannungskategorie: 4: Zubehör / Ersatzteile:HZT632 S014 HT006 HZT532 HZT531 HZT631
Tariffeld 1-feldrig, Höhe 900mm, Breite 250mm, 1-Tarif-Rundsteuer-Empfänger 3.HZ, 300mm, Verteilerfeld 3-reihig
Abgangskabelbaum L1,L2,L3,N,PE, oberer Zähler, AKB3. Farbe: 3x braun, 1x blau, 1x grüngelb. Passend für: 3.HZ Zähler - Bauhöhe 1400 mm
Treppenlicht-Zeitschalter mit zuschaltbarer Ausschaltvorwarnung. Stand-by-Verlust nur 0,7 Watt. Kontaktschaltung im Nulldurchgang zur Schonung der Kontakte und Lampen. Insbesondere verlängert dies die Lebensdauer von Energiesparlampen. Durch die Verwendung eines bistabilen Relais gibt es auch im eingeschalteten Zustand keine Spulen-Verlustleistung und keine Erwärmung hierdurch. Nach der Installation die automatische kurze Synchronisation abwarten, bevor der geschaltete Verbraucher an das Netz gelegt wird. Steuer-, Versorgungs- und Schaltspannung 230V. Glimmlampenstrom bis 50mA abhängig von der Zündspannung der Glimmlampen. Genaue Zeiteinstellung 1 bis 12 Minuten mit Minutenskala. Eigener Dauerlicht-Schalter mit dem großen Drehschalter. Für 3-Leiter-Schaltungen mit Dachbodenbeleuchtung, nicht nachschaltbar. Nur zur Nachrüstung bestehender Anlagen. Nach einem Stromausfall wird die Beleuchtung wieder eingeschaltet, wenn der Zeitablauf noch nicht beendet war. Bei zugeschalteter Ausschaltvorwarnung flackert die Beleuchtung ca. 30 Sekunden vor Zeitablauf beginnend und insgesamt 3-mal in kürzer werdenden Zeitabständen.
Sammelschienenklemmen (SSK16)SammelschienenisolierungAbdeckstreifen (ADS12W)1x N-N-Steckklemme (ZSSKN17N)1x PE-Steckklemme (ZSSKPE34)1 x Patchkabel (PL100)2 x Patch-Patch-Verbinder (PPV5)
HLAK Hauptleitungsabzweigklemme 25-510 HHAK 25-510
Drucktaster zur Schaltung und Steuerung elektrischer Verbraucher. Lieferbare Ausführungen: 6 Farben, beleuchtet/unbeleuchtet, mit/ohne Beschriftung, verrastende/tastende Betätigung, verschiedene Druckknopf- und Frontringhöhen. Hinweis: Komplettgerät, Lieferung inklusive Halter und Module. Unter dem Markennamen SIRIUS ACT bietet Siemens ein einzigartiges Portfolio an Befehls- und Meldegeräten mit weltweiten Produkt-Zulassungen in vier modernen Designreihen aus robustem Echtmetall und hochwertigem Kunststoff. Das innovative Aufschnappkonzept vereinfacht die Montage so weit, dass dafür nur eine Hand und kein Spezialwerkzeug erforderlich ist. Als Montagebohrungen genügen nutfreie Löcher, da bereits ein 100%iger Verdrehschutz integriert ist. Dank der durchgängig hohen Schutzart sind die robusten Geräte industrietauglich und für den Außeneinsatz geeignet. Sogar die Reinigung mit Hochdruckstrahl ist möglich. Weder Staub, Öle noch aggressive Laugen können den zuverlässigen Betrieb stören. Neben der Standardverdrahtung können die Geräte auch über PROFINET, AS-Interface oder IO-Link an die Steuerung angebunden werden. Damit reduzieren Sie Ihren Verdrahtungsaufwand, minimieren Fehlerquellen und gewinnen mehr Flexibilität. Komfortabel unterstützt der grafische Online-Konfigurator bei Auswahl und Bestellung von Einzelgeräten, Gehäusen und Beschriftungen. Umfangreiche Dokumentation (z.B. Handbuch, 3D-Daten, Anschlussdiagramm) ist verfügbar. SIRIUS ACT - Performance in Action beim Befehlen und Melden. Einfach montiert, einfach stark, einfach perfekt.
1St. Wöhner 31301 D0-Einbau-Sicherungssockel E 14 / 16 A / 1P berührungsgeschützt
Sockel, Baureihe TwinLine, passend für Baureihe: TwinLine, teilmontiert, für den Innenbereich, pulverbeschichtet, in RAL 9005, Leitungseinführung seitlich über vorgeprägt, Abmessungen in mm (H x B x T): 100 x 800 x 225, Feldbreite 3
Komplettschrank EHZ711HDS Leergehäuse aus StahlblechAufputzmontage mit TürSchutzart IP31/43Baugruppe EH61x eHZ Feld5/5 polige Verdrahtung2 Hutschienen im oberen Anschlussraum1 Hutschiene im unteren Anschlussraum Datenschnittstelle OKK-BKE
Flansch aus Isolierstoff, Schutzart IP54, eingeschäumte, unverlierbare Dichtung, schnelle Montage durch Keilverbindung (im Lieferumfang enthalten), für Gehäusemaß 375mm
Pilzdrucktaster Harmony Metallausführung Durchmesser 22,5 mm. Rot, 40mm. Durchmesser, Not-Halt/Not-Aus, Drehentriegelung, Kontakte: 2Ö. Komplettgerät, Lieferung mit Befestigungsflansch und Hilfsschalterblock. Hohe Schutzart: IP66/67/68/69K, einfache Monta
NH-Sicherungs-Lastschaltleiste LV NH2 185mm 3-polig M12. NH2-Sicherungs-Lastschaltleiste 400A, für Sammelschienenmontage Abstand 185mm. Nach DIN VDE 0660/107 und IEC 947-3 geeignet für NH-Sicherungseinsätze nach DIN 43620/1. Bestehend aus 3-poligem Schaltleistenunterteil und plombierbarem Griffeinsatz, Berührungsschutz am Griff, mit verschiebbarem Klarsichtfenster zur Spannungsprüfung, allpolig schaltend, mit Universalanschluss Schraube M12, rostgeschützt.
Hilfsschalter Harmony XALD / XALK. ohne Rastung, Kontakt 1S, gestuft schaltend. rückseite Montage. Für XAPS-Kontrollstation.
Sicherungs-Set mit Blinkeinsatz, Baugröße D02, Bemessungsstrom 35A, Farbcode schwarz, Betriebsklasse gG (gL), Bemessungsbetriebsspannung 60-400V AC / 60-220V DC, Prüfspannung 5kV, DIN-Schienenmontage, 1 Set besteht aus: 3 Sicherungs-Einsätzen, 3 Stromkodierungen, 1 Kunststoffbox in der Farbe der Kennmelder
1St. Striebel BF17F11 BF17F11 Zählerfeld 7RE 1Z1R vorverdrahte
Zählerfeld 1-feldrig, 1-Zählerplatz 3.HZ mit 16mm² Verdrahtung, Höhe 1050 mm, Breite 250 mm, Sammelschienensystem 5-polig, mit Zählersteckklemmen-Set
Relaisfassung mit Schraubanschlüssen, für DIN-Schiene, für Relais 40.52, 40.61, 44.52 oder 44.62, Modulreihe 99.80
Verteilerfeld 1-feldrig, Höhe 1050 mm, Breite 250 mm, 4-reihig, mit APZ-Platz inkl. APL-Set, zRfZ-Platz
Sammelschienenklemmen (SSK16)SammelschienenisolierungAbdeckstreifen (ADS12W)1x N-N-Steckklemme (ZSSKN17N)1x PE-Steckklemme (ZSSKPE34)
1St. ABB Phasenschienen Endkappe PSB-END3
Sammelschienenklemmen (SSK35)SammelschienenisolierungAbdeckstreifen (ADS12W)1x N-N-Steckklemme (ZSSKN17N)1x PE-Steckklemme (ZSSKPE34)1 x Patchkabel (PL100)2 x Patch-Patch-Verbinder (PPV5)SLS SchalterÜberspannungsschutz für Gebäude ohne äußeren Blitzschutz